Intervento di risanamento conservativo del fabbricato vincolato ai beni architettonici ad uso Municipio: recupero dei particolari architettonici, decorativi e pittorici e studio di illuminazione scenografica delle facciate con inserimento di elementi puntuali a led.
Riqualificazione di ampia area verde in centro paese a Dormelletto: realizzazione di nuovo parco giochi con creazione di percorsi pedonali, aree gioco per bambini piccoli e grandi, zona dedicata ad orto inclusivo, costruzione di nuovo pergolato ed ampio gazebo quali spazi di sosta ed aggregazione.
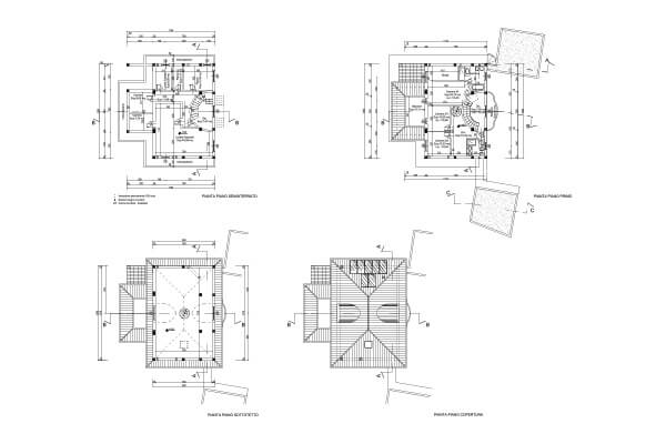
Progetto di ristrutturazione di villa in Dormelletto con studio di nuove grandi vetrate semicircolari vista lago, creazione di ampie scalinate in marmo, rifacimento di grande camino scenografico, realizzazione di pareti attrezzate ed arredi su misura.
Progetto di ristrutturazione con ampliamento di ampio fabbricato commerciale. Riqualificazione di strutture ed impianti, studio degli spazi interni e dell’area esterna. Creazione di nuova facciata ventilata con rivestimento in grandi lastre in pietra sinterizzata realizzate su disegno. Studio completo di arredamento d’interni.
Studio progettuale completo per la realizzazione di nuova villa in Arona.
Tel. 335 651 4638
Via Mazzini, 9 - 28041 Arona (NO)
Arch. Michela Laudicina - michela@architettilaudicina.it
Copyright © | P.I. 01852300035 | Privacy Policy | Cookie Policy | Aggiorna le tue preferenze cookie